
Desde la Dirección General de Cultura y Educación (DGCyE) de la provincia de Buenos Aires se confirmó esta semana el llamado a licitación para la construcción de un nuevo edificio para el Instituto de Formación Docente y Técnica (ISFDyT) N°32 “Lidia Gallino de Camino” de la ciudad de Balcarce.
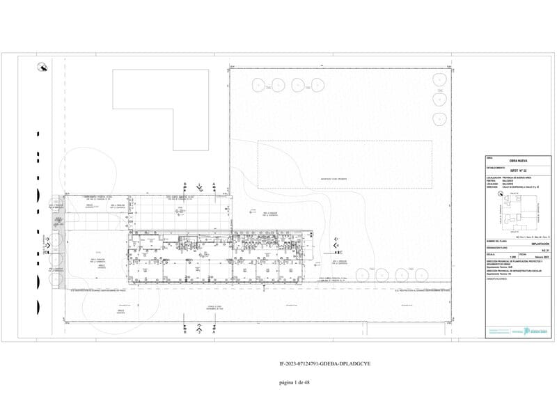
El pliego oficial indica que la futura sede del Instituto deberá construirse sobre avenida Suipacha (32) a la altura de calle 33, en un predio ubicado entre la Escuela de Educación Especial (EEA) N°502 y la Escuela de Educación Secundaria (EES) N°3. El inmueble constará de dos plantas, cubriendo un total aproximado de 1.500 metros cuadrados de construcción. El edificio estará emplazado en el corazón de ese sector de la ciudad destinado a convertirse en un polo educativo, ya que además de la EES 3 y la EEA 502 allí se encuentran la Escuela de Educación Técnica N°1, el Jardín de Infantes N°902, y en el Cerro "El Triunfo" se construye la sede del Centro Universitario, también con financiamiento provincial a través del programa "Puentes".
El presupuesto total inicial es de $ 540.164.899,55 y el plazo para la finalización de las obras es de 365 días a partir de la adjudicación. En la correspondiente resolución se señala que el jueves 11 de mayo en horas del mediodía está prevista una visita de obra, durante la cual las empresas interesadas podrán recorrer el predio y analizar la propuesta. La apertura de las ofertas se realizará el jueves 18 de mayo en el primer piso que la DGCyE posee en la ciudad de La Plata.
Ante esta situación desde distintos sectores, especialmente docentes y alumnado, oportunamente plantearon su preocupación ante la posibilidad de que el Instituto quedara en una situación de desamparo, generando reclamos en el Concejo Deliberante y al mismo titular de la cartera educativa bonaerense, Alberto Sileoni, por parte del gremio SUTEBA. En su momento la presidenta de la Asociación Cooperadora del ISFDyT y profesora, Sandra Gimaray, expresó que “no queremos irnos del lugar que nos identifica. Por eso pedimos la extensión del contrato de alquiler por dos años hasta tener finalizada al menos la primera etapa de la obra para la construcción de nuestra nueva sede”.
Con este llamado a licitación la Provincia asegura a esta institución educativa la posesión de sus instalaciones propias, dando respuesta a una demanda que data de varios años. La presidenta del bloque de concejales del Frente de Todos en Balcarce, Sol Di Gerónimo, destacó la millonaria inversión realizada por la gestión de Axel Kicillof, y manifestó que alrededor de esta demanda histórica, desde el espacio político local se viene trabajando "día a día y codo a codo" con los funcionarios provinciales, tanto de la cartera educativa como la de infraestructura y el Ejecutivo, para poder concretar la tan ansiada obra. Consultada acerca de la posibilidad de que la licitación quede desierta, sin oferentes, la edil aseguró que "hace mucho tiempo que venimos trabajando para que de una vez se pueda cumplir este sueño, y no vamos a descansar hasta que se vea iniciada la obra".
La institución educativa continúa funcionando en una propiedad alquilada en el centro de la ciudad, la que, hace ya casi dos años, sus dueños solicitaron sea restituida para poner en marcha el proyecto de un emprendimiento inmobiliario privado, generando en su momento incertidumbre acerca de su destino. Asimismo el Instituto está haciendo uso de instalaciones de la Escuela Primaria N°1 para el dictado de clases.
Con este llamado a licitación la Provincia asegura a esta institución educativa la posesión de sus instalaciones propias, dando respuesta a una demanda que data de varios años. La presidenta del bloque de concejales del Frente de Todos en Balcarce, Sol Di Gerónimo, destacó la millonaria inversión realizada por la gestión de Axel Kicillof, y manifestó que alrededor de esta demanda histórica, desde el espacio político local se viene trabajando "día a día y codo a codo" con los funcionarios provinciales, tanto de la cartera educativa como la de infraestructura y el Ejecutivo, para poder concretar la tan ansiada obra. Consultada acerca de la posibilidad de que la licitación quede desierta, sin oferentes, la edil aseguró que "hace mucho tiempo que venimos trabajando para que de una vez se pueda cumplir este sueño, y no vamos a descansar hasta que se vea iniciada la obra".
El detalle de las obras
Las siguientes imágenes fueron tomadas de los planos, incluidos en el pliego oficial de licitación, de lo que será la futura sede propia del ISFDyT N°32 de Balcarce:
 







 

 
 
 
